Дворцы Эхнатона - История архитектуры

ИСТОРИЯ
- архитектуры
ИСТОРИЯ
- архитектуры
ИСТОРИЯ
- архитектуры
ИСТОРИЯ
- архитектуры
Перейти к контенту

Дворцы Эхнатона

Рабовладельческое общество > Древний Египет > Новое царство
    Особенно большое значение имеет Ахетатон (Тель-эль-Амарна) для изучения дворцовой архитектуры. Здесь сохранились три дворца, принадлежавшие самому фараону и членам его семьи. Дворец Эхнатона находился в центре столицы, два других — на северной и южной окраинах города.
Дворцы Эхнатона. Тель-эль-Амарна. Северный дворец
Дворцы Эхнатона. Тель-эль-Амарна. Северный дворец
    Главный дворец был построен вдоль берега Нила. Длина его фасада равняется 700 м. Широкая дорога разделяет дворец на две части, восточную и западную. Западная половина была парадной частью, восточная — жилой; рядом с ней находилось святилище Атона. Официальная и жилая части были обнесены кирпичными стенами. Между собой они соединялись перекинутым через дорогу трехпролетным мостом. В центре моста находился декоративно оформленный проем, так называемое «окно явлений». В гробнице вельможи амарнского периода Мерира сохранилось изображение фараона, стоящего в проеме во время торжественных церемоний.
    Парадная часть дворца раскопана не полностью, и об ее планировке можно судить только предположительно. Вероятно, вход был оформлен в виде пилона, за ним находились постройки, примыкавшие к огромному двору, где стояли статуи фараона из кварцита; двор имел выход на дорогу. В южной части двора находился павильон с пальмовидными колоннами, украшенными инкрустациями из фаянса и золота. В парадный комплекс дворца входили несколько залов различного назначения, украшенных красиво декорированными колоннами, открытый вымощенный алебастром двор и другие помещения.
    В восточной, жилой, части дворца находились подсобные помещения, кладовые, сады, многочисленные залы. Особый интерес представляет колонный зал, пол которого был покрыт росписью, изображавшей бассейн с лотосами и нильские заросли, плавающих рыб, порхающих птиц, резвящихся бычков. Росписи эти чрезвычайно интересны и по своему содержанию, и по манере исполнения. Композиции построены свободно, тела животных изображены естественно.
Дворцы Эхнатона. Тель-эль-Амарна. Росписи дворца
Дворцы Эхнатона. Тель-эль-Амарна. Росписи дворца
    Мастер прекрасно передает свежесть раннего утра, остатки воды, еще поблескивающей на трепетных крыльях птиц, чистоту воздуха, теплоту света. Эти росписи представляют собой иллюстрацию к гимну в честь бога Атона,созданному безымянным гениальным поэтом 3500 лет назад. Присущая росписям этого времени плавность теневых переходов, нюансы цвета, использование полутонов позволяют художнику передать радость природы, пробуждающейся в лучах восходящего солнца.
    За глухой стеной колонного зала находился большой сад, на месте которого в конце правления Ахетатона был построен другой колонный зал с многочисленными четырехгранными кирпичными столбами, покрытыми белой обмазкой. Потолок зала был украшен росписью, изображавшей виноградные лозы, а декорацией стен служили поливные изразцы с изображением цветов. На зеленом фоне выделялись красновато-сиреневые репейники, фиолетовые плоды инжира, голубые васильки, белые с желтой сердцевиной ромашки. Цветы исполнены с большим мастерством и тщательностью. Судя по наличию алтаря в северо-западном углу, зал предназначался для церемоний, связанных с культом Атона.
Дворцы Эхнатона. Тель-эль-Амарна. Южный дворец. Аксонометрия
Дворцы Эхнатона. Тель-эль-Амарна. Южный дворец. Аксонометрия
    Жилая половина дворца, где находились комнаты фараона и его семьи, также отличались большой пышностью. Центром жилого комплекса служил зал с сорока двумя деревянными колоннами, соединенный проходом с личными покоями фараона и царицы, за которыми следовали шесть спален царевен. На одной из стен сохранилось изображение двух дочерей Эхнатона, играющих друг с другом. Этот фрагмент был частью композиции с фигурами Эхнатона, его жены — царицы Нефертити и принцесс. Египетское искусство знало много лирических образов, но может быть самые поэтичные среди них — эти две крошечные девочки, утопающие в огромных красных подушках.
    В Главном дворце наряду с парадными и жилыми помещениями имелись сады с беседками и прудами, предназначенными для отдыха фараона, зверинец с диковинными животными, птичник, многочисленные кладовые и кухни. Это был огромный комплекс, очень интересный по своей архитектуре и разнообразный по декоративному оформлению.



    Особенно большое значение имеет Ахетатон (Тель-эль-Амарна) для изучения дворцовой архитектуры. Здесь сохранились три дворца, принадлежавшие самому фараону и членам его семьи




    Кроме Главного дворца в южной и северной части Ахетатона было еще два пригородных дворца.
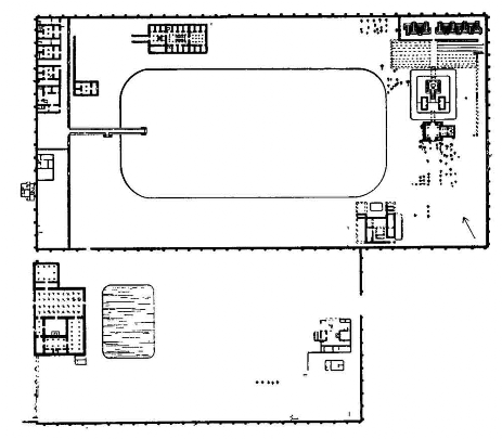
    Южный дворец, называемый Мару-Атон, состоял из двух самостоятельных, обнесенных кирпичными стенами комплексов. Против входа в южную часть дворца находился зал с 36 колоннами. Широкий средний неф входного зала вел в большой сад с овальным бассейном. К основному залу примыкали колонные залы меньших размеров. Центральную часть северного комплекса занимал огромный (60X120 м) бассейн, окруженный садом. С запада сад ограничивала стена, за которой жил обслуживающий персонал.
    С северной стороны бассейна находится прямоугольное в плане кирпичное здание, состоящее из трех колонных залов и небольших комнат. Наличие специального возвышения позволяет считать первый колонный зал тронным. К нему примыкала комната с альковом, служившая спальней.
Дворцы Эхнатона. Тель-эль-Амарна. Южный дворец. План
Дворцы Эхнатона. Тель-эль-Амарна. Южный дворец. План
    Посреди второго зала был разбит открытый сад, к третьему залу примыкали кладовые для вина. К северу от бассейна размещалось несколько культовых зданий, для сооружения которых были применены различные ценные породы камня.
Дворцы Эхнатона. Изображение сада на гробнице верховного жреца Мерире
Дворцы Эхнатона. Изображение сада на гробнице верховного жреца Мерире
    В декорировке Мару-Атон был широко использован рельеф. Сохранились композиции со сценами поклонения Атону, фигуры бегущих воинов и пленных. Стены залов украшали росписи с изображениями виноградных лоз и веток граната.
    Третий, северный дворец Ахетатона занимал прямоугольный участок размерами 112X142 м. Он также был окружен кирпичной стеной. В нем было два двора, в центре одного из них находился бассейн, окруженный деревьями. Дворец имел парадные колонные залы, залы для пиров, спальни, умывальные. При дворце находился зверинец и птичник.
Top.Mail.Ru
Яндекс.Метрика
Назад к содержимому